{$cfg_webname}
主页 > 土木工程 > 建筑结构 >

三层2259平米某市综合办公楼建筑结构设计(建筑图,结构图)

来源:wenku7.com  资料编号:WK719246 资料等级:★★★★★ %E8%B5%84%E6%96%99%E7%BC%96%E5%8F%B7%EF%BC%9AWK719246
以下是资料介绍,如需要完整的请充值下载。
1.无需注册登录,支付后按照提示操作即可获取该资料.
2.资料以网页介绍的为准,下载后不会有水印.资料仅供学习参考之用. 帮助
资料介绍

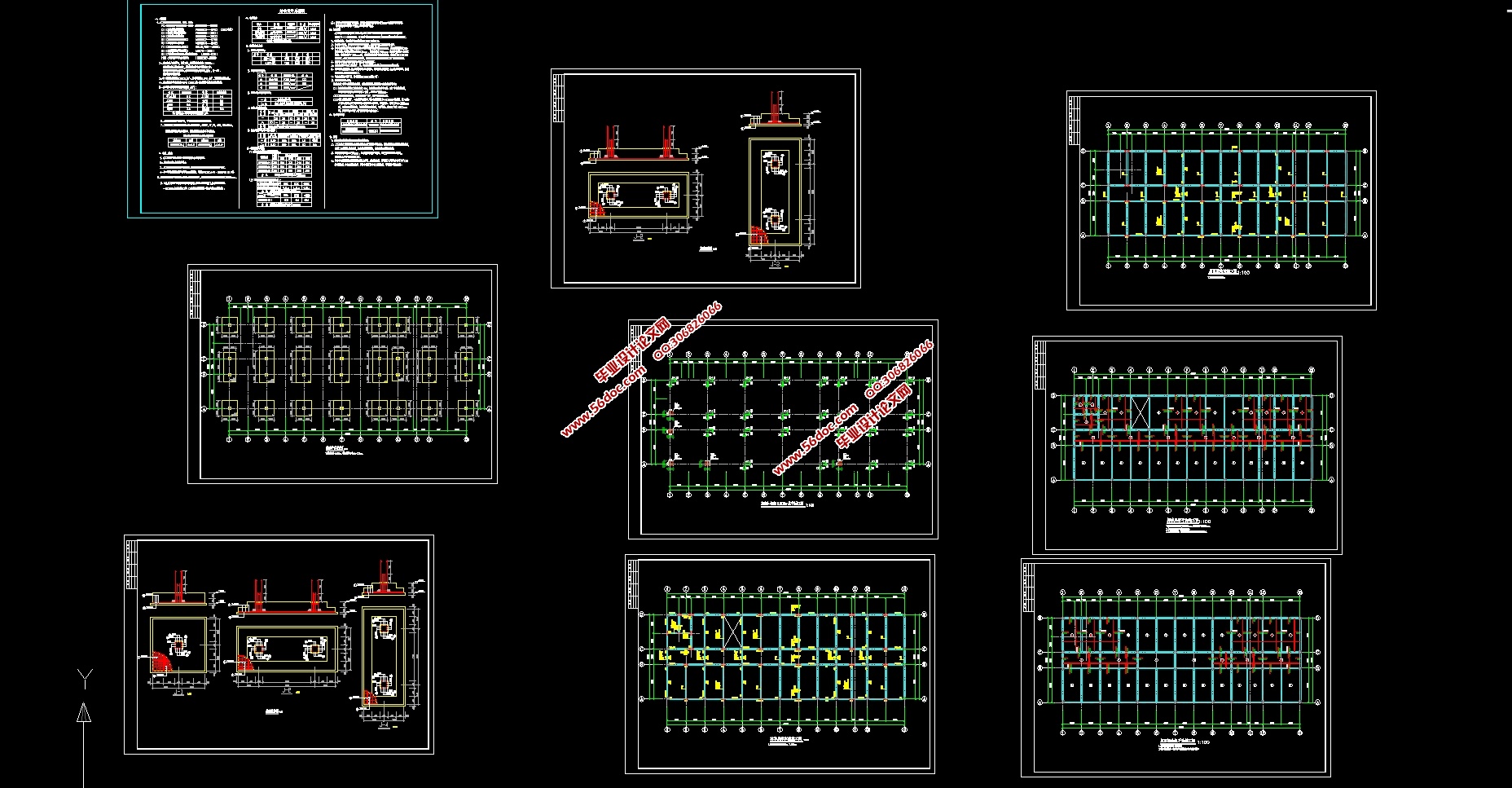
三层2259平米某市综合办公楼建筑结构设计(建筑图,结构图)(计算书20000字,建筑图5张,结构图8张)
摘 要
本工程为某市综合办公楼建筑结构设计,主体结构为钢筋混凝土框架结构。总建筑面积约2259㎡,该项目位于某市南郊,建筑设计要求达到适度先进水准。建筑层数为三层。
本论文综合运用所学的专业知识,根据设计任务书的要求进行了钢筋混凝土结构教学楼的建筑设计、结构设计。
设计过程遵循先建筑后结构再基础的顺序进行。建筑设计,依据建筑总体规划要求、建筑用地条件和基地周边的环境特点,首先设计建筑平面, 其次进行立面造型、剖面设计。建筑设计应满足使用功能和造型艺术的要求,并适应未来发展与灵活改造的需要。
结构设计密切联系建筑设计,以现行的有关规范为依据,主要包括结构选型及结构布置、确定计算简图及计算单元、荷载计算、侧移控制、内力组合、构件设计、楼梯设计、基础设计等内容 。本工程采用钢筋混凝土结构框架结构体系(横向承重),选择了有代表性的一榀框架进行计算。对于竖向荷载作用采用弯矩二次分配法,水平荷载作用采用D值法。设计计算整个过程中综合考虑了技术经济指标和施工工业化的要求,由于本工程位于6度抗震设防区,所以计算时不考虑抗震要求。
施工组织设计主要包括施工准备工作、施工部署、主要项目的施工方法以及技术质量、安全生产、文明施工方面的一系列措施。
关键词: 建筑设计 ; 结构设计;施工组织设计 ; 荷载计算    

1.1 设计原始资料
1.1.1 工程概况
该工程为现浇钢筋混凝土框架结构,建筑面积2259.0㎡,建筑物共3层,底层层高3.6m,标准层层高3.60m,顶层层高3.60m,总高度10.8m,室内外高差0.450m
该综合楼拥有会议室、办公室、盥洗室、储藏室等。楼内设有2个楼梯,楼梯的布置均符合消防、抗震的要求。
1.1.2 设计条件
该工程重要性等级为四级,本地区极端最高气温39.2℃℃,极端最低气温-7.7℃。年降雨量1712.2mm,平均相对湿度75%。主导风向为西北风。拟建场地内无地表水系分布。
1.抗震设防烈度:6度设防,设计基本地震加速度值为0.05g;
2.基本风压:0.4KN/m2,B类粗糙度;
3.雪荷载标准值:0.35KN/m2;
4.结构体系:现浇钢筋混凝土框架结构;
5.工程地质条件:拟建场地地形平坦,地层分布较为规律,地基承载力按170KN/m2计。
 

三层2259平米某市综合办公楼建筑结构设计(建筑图,结构图)
三层2259平米某市综合办公楼建筑结构设计(建筑图,结构图)
三层2259平米某市综合办公楼建筑结构设计(建筑图,结构图)
三层2259平米某市综合办公楼建筑结构设计(建筑图,结构图)
三层2259平米某市综合办公楼建筑结构设计(建筑图,结构图)


目录
前言    6
第一章 设计任务及基本要求    7
1.1 设计原始资料    7
1.2 建筑设计要求    7
1.3结构设计任务及要求    7
第二章 建筑设计说明    8
2.1建筑平面设计    8
2.2剖面设计    8
第三章 结构设计    9
3.1 结构方案的选择及结构布置    9
第四章 侧移线刚度计算    11
第五章 恒荷载作用下内力计算    12
5.1 框架恒荷载标准值计算    12
5.2 框架梁恒载作用下线荷载统计计算    13
5.3 框架节点集中荷载计算    15
5.4 恒载作用下框架梁的内力计算    18
第六章 活荷载作用下内力计算    24
6.1 框架梁活恒载作用下线荷载统计计算    24
6.2 活荷载作用下框架节点集中荷载计算    26
6.3 活载作用下框架梁的内力计算    27
第七章 风荷载作用下内力计算    33
7.1 风荷载标准值计算    33
7.2 风载作用下抗侧移刚度D的计算:    34
7.3 风荷载作用下的内力计算    35
第八章 地震荷载作用下内力计算    39
8.1 重力荷载代表值计算    39
8.2 横向框架自振周期计算    41
8.3 横向水平地震作用计算    42
8.4 水平地震作用下框架的内力计算    43
第九章 内力组合    46
9.1 横向框架梁的内力组合    47
9.2 竖向框架柱的内力组合    54
第十章 截面设计    58
10.1 设计内力    58
10.2 梁截面设计    58
10.3 框架柱截面设计    61
第十一章 基础设计    63
结论    68
谢辞    70
参考文献    71

推荐资料