基于CAD技术的小型上下胶带封箱机设计(含CAD图,CAXA图纸)
来源:wenku7.com 资料编号:WK717297 资料等级:★★★★★ %E8%B5%84%E6%96%99%E7%BC%96%E5%8F%B7%EF%BC%9AWK717297
以下是资料介绍,如需要完整的请充值下载。
1.无需注册登录,支付后按照提示操作即可获取该资料.
2.资料以网页介绍的为准,下载后不会有水印.资料仅供学习参考之用. 密 保 惠 帮助
资料介绍
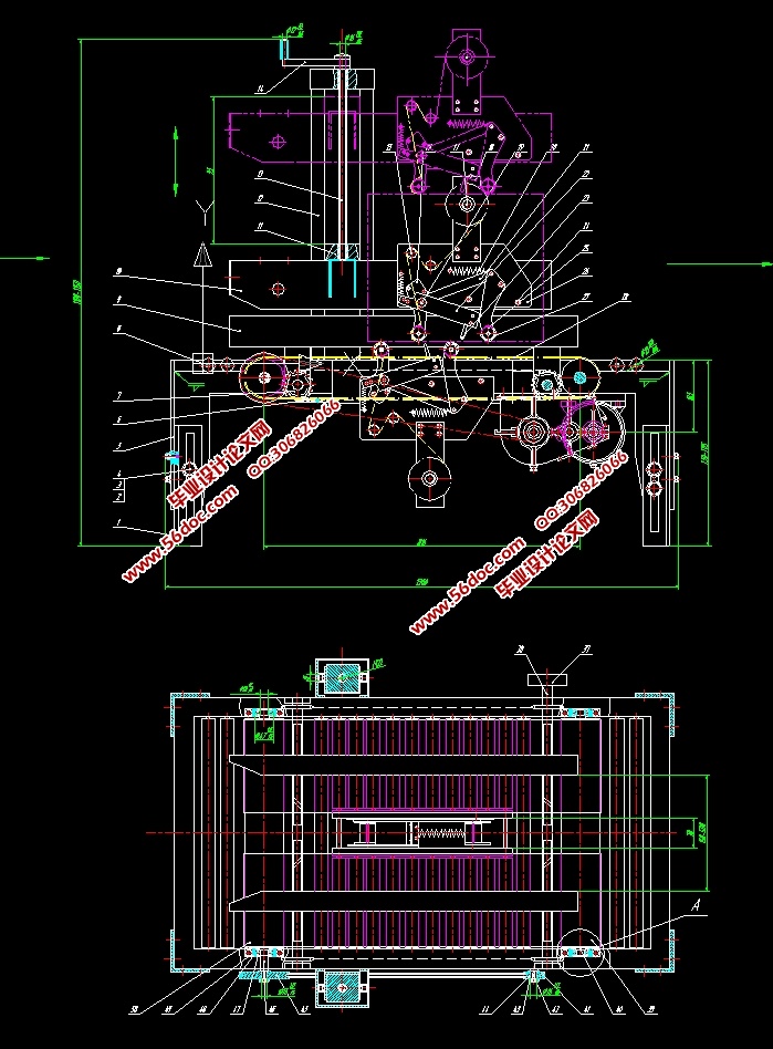
基于CAD技术的小型上下胶带封箱机设计(含CAD图,CAXA图纸)论文说明书12600字,CAD图纸14张,CAXA图纸14张)
DESING OF SMALL UPPER AND LOWER ADHESIVE TAPE SEALING MACHINE BASED ON CAD TECHNOLOGY
摘要
随着当今社会上各式各样产品的出现,对包装技术和包装设备也有了新的要求,封箱机在物流领域中发挥了越来越重要的作用。故在对封箱机进行了调查和研究后,本论文详细阐述了对封箱机的设计。
本论文以CAD技术为主,SOLIDWORKS为辅对胶带封箱机进行了研究,主要设计如下:
(1)查看市面上现有的封箱机,利用SOLIDWORKS软件绘制封箱机三维图。
(2)查阅资料,分析封箱机的主要结构,制定总体设计方案。
(3)确定对传动结构、封箱结构和调节结构的设计方案。
(4)为保证设计出的封箱机能进行装配和运行,要对主要零件进行计算及校核。
(5)利用CAD技术,绘制出封箱机的装配图并进行检查。
关键词:封箱机;四杆机构;CAD技术;滚筒
Abstract
With the emergence of various kinds of products, packaging technology and packaging equipment also have new requirements, sealing machine in the field of logistics has played a more and more important role. Therefore, after investigating and studying the sealing machine, this paper expatiates on the design of the sealing machine.
In this paper, the CAD technology as the main aid of SOLIDWORKS tape sealing machine was studied, the main design is as follows: check the existing sealing machine and use SOLIDWORKS software to draw the three-dimensional map of the sealing machine.consult the data, analyze the main structure of the sealing machine and work out the overall design scheme. The design scheme of transmission structure, sealing box structure and regulating structure is determined. In order to ensure the assembly and operation of the designed sealing function, the main parts should be calculated and checked.drawing and checking the assembly drawing of sealing machine by using CAD technology.
Keywords sealing machine four-bar mechanism CAD technology drum
技术参数要求
(1)封箱速度:≥1000箱/小时
(2)纸箱尺寸:长160~500mm,宽160~500mm,高125~500mm
(3)胶带宽度:36mm、48mm、60mm
(4)使用胶带类型:BOPP PVC胶带
(5)工作台高度:750mm-785mm


目 录
摘要 I
目录 III
1 绪论 1
1.1 课题背景 1
1.2 封箱机的发展状况 1
1.2.1 国外封箱机的发展状况 1
1.2.2 国内封箱机的发展状况 2
1.3 课题研究的内容及意义 2
1.4 技术参数要求 3
2 总体方案设计 4
2.1 传送机构方案设计 4
2.2.1 方案一:间歇式传送 4
2.1.2 方案二:连续式传送 5
2.2 封箱机构方案设计 5
2.3 设计方案的确定 6
2.3.1 传送机构设计方案的确定 7
2.3.2 封箱机构设计方案的确定 7
2.3.3 调节机构设计方案的确定 7
3 传送机构设计 8
3.1 电动机的选用 8
3.1.1 电动机的性能和分类 8
3.1.2 选择电动机应综合考虑的问题 9
3.1.3 本传动机构电动机的类型选择 9
3.2 传动比的分配 11
3.3 各轴运动及动力参数计算 12
3.4 减速器的选用 13
3.4.1 减速器性能和分类 13
3.4.2 减速器类型的选择 13
3.5 带传动的设计 14
3.5.1 平带传动 14
3.5.2 V带传动 14
3.6 主轴的设计 17
3.6.1 轴材料的选择 17
3.6.2 各轴段直径和长度的确定 17
3.6.3 主轴的载荷分析 19
3.6.4 轴的校核 20
3.6.5 轴承的强度校核 22
3.7 联轴器的选用 23
4封箱机构设计 24
4.1 工作台高度的调节机构 24
4.2 纸箱宽度调节机构 24
4.2.1 导向杆的设计 24
4.2.2 宽度调节机构 24
4.3 纸箱高度调节机构 25
4.4压带机构设计 25
4.5刀架部件设计 27
4.6 刀片设计 26
5 总装分析 29
6安装、操作以及日常维护 30
6.1封箱机安装注意事项 30
6.2 封箱机的日常维护 30
6.3 封箱机常见故障及其排除方法 30
结论 32
致谢 33
参考文献 34
|