{$cfg_webname}
主页 > 机械机电 > 机械 >

LW800螺旋卸料沉降离心机机构设计(含CAD零件装配图)

来源:wenku7.com  资料编号:WK715080 资料等级:★★★★★ %E8%B5%84%E6%96%99%E7%BC%96%E5%8F%B7%EF%BC%9AWK715080
以下是资料介绍,如需要完整的请充值下载。
1.无需注册登录,支付后按照提示操作即可获取该资料.
2.资料以网页介绍的为准,下载后不会有水印.资料仅供学习参考之用. 帮助
资料介绍

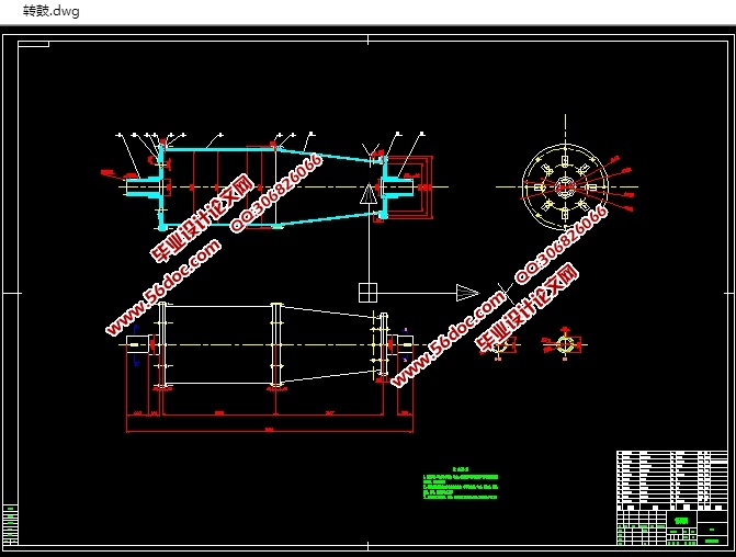
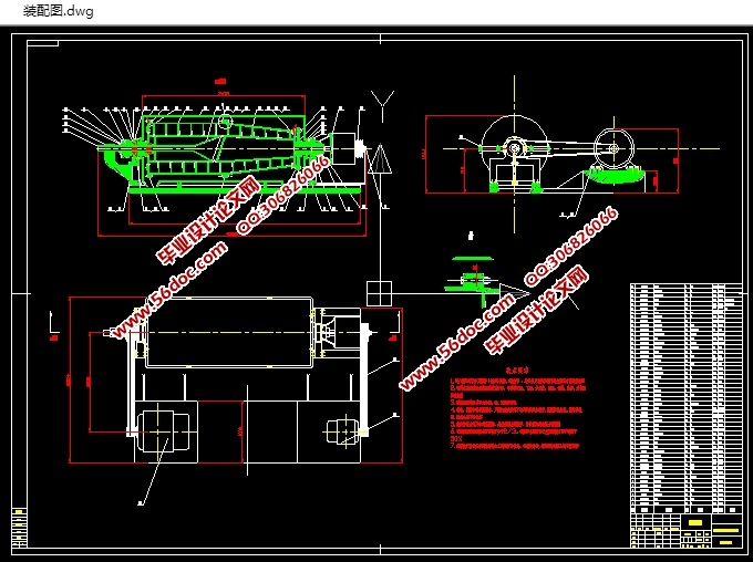
LW800螺旋卸料沉降离心机机构设计(含CAD零件装配图)(选题审题表,任务书,开题报告,外文翻译,设计说明书13000字,CAD图5张)
LW800螺旋卸料沉降离心机,是环境保护中的一种污水处理设备,它是利用转鼓的高速旋转作用,产生较大的离心力,使悬浮液中密度及颗粒大小不同的固相(污泥颗粒)和液相(水)等分离开,从而净化污水的装置。该课题属于工程设计类题目,符合专业培养目标。
 

LW800螺旋卸料沉降离心机机构设计(含CAD零件装配图)
LW800螺旋卸料沉降离心机机构设计(含CAD零件装配图)
LW800螺旋卸料沉降离心机机构设计(含CAD零件装配图)
LW800螺旋卸料沉降离心机机构设计(含CAD零件装配图)


目      次
1  绪论    1
1.1  离心机的产生、发展和应用    1
1.2  离心沉降    2
1.3  离心沉降分离技术的基本原理    2
1.4  离心沉降分离机的种类    3
1.5  卧式螺旋卸料沉降离心机    3
2  卧螺离心机的主要参数及基本构件    7
2.1  分离因数    7
2.2  主要部件    7
2.3  螺旋卸料沉降离心机参数选择及确定    9
3  卧式螺旋卸料沉降离心机功率计算    14
3.1  启动转鼓及螺旋等转动部件所需功率    14
3.2  启动物料达到工作转速所需功率    15
3.3  克服轴与轴承之间的摩擦所需功率    16
3.4  克服空气摩擦所需要的功率    17
3.5  卸出物料所需的功率    18
3.6  卧螺离心机功率确定    20
4.  强度计算    21
4.1  转鼓的强度计算    21
4.2  轴的强度校核    25
5  设计总结    28
6  致谢    29
参 考 文 献    30

推荐资料