气动震源机械传动系统的设计(含CAD零件装配图)
来源:wenku7.com 资料编号:WK715056 资料等级:★★★★★ %E8%B5%84%E6%96%99%E7%BC%96%E5%8F%B7%EF%BC%9AWK715056
以下是资料介绍,如需要完整的请充值下载。
1.无需注册登录,支付后按照提示操作即可获取该资料.
2.资料以网页介绍的为准,下载后不会有水印.资料仅供学习参考之用. 密 保 惠 帮助
资料介绍
气动震源机械传动系统的设计(含CAD零件装配图)(论文说明书13000字,CAD图纸9张)
当今社会,机械工业是一个国家的重要产业,机械工业的发展无时不刻都在影响着国家经济的发展,人类的进步离不开机械工业的发展。在全球经济发展的大环境下,中国各个行业被其他国家的先进技术影响的同时,越来越多的外国企业和品牌传播到中国已经成为现实。在新的市场需求的推动下,对气动震源机械传动系统进行改良和优化是当务之急。有大型气动震源机械传动系统生产设备企业对设备的安全指标的有着一定生产的严格要求。在生产设备的企业,充分考虑到在设备运行中可能出现的问题,从而减少噪声污染引起的振动或不当操作设备的现象等。国内气动震源机械传动系统设备的研发及制造要与全球号召的高效经济、安全稳定主题保持一致。气动震源机械传动系统的发展与人类社会的进步和科学技术的水平密切相关。
本次设计是关于气动震源机械传动系统结构的设计,通过对传统的气动震源机械传动系统结构进行了改进和优化,使得此种类型的气动震源机械传动系统结构的使用范围更广泛,更加灵活,并且对今后的选型设计工作有一定的参考价值。
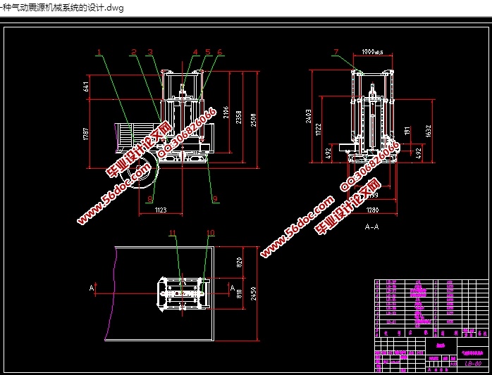
气动震源机械传动系统结构的总体方案图
震源是石油勘探的重要物探设备,是产生地震信号的源头。人工震源通常包括炸药震源、落重震源、锤击震源、撞击震源、气枪震源、气爆震源、电火花震源、可控震源等,人工震源激发具有可控性强、定位精度高等优点。炸药震源具有瞬时能量大,产生脉冲尖锐、分辨率高、经济性好。


目 录
摘要 1
Abstract 2
第一章 绪论 4
1.1 课题的来源与研究的目的和意义 5
1.2 气动震源机械传动系统简介 8
1.3 本课题研究的内容 10
第二章 气动震源机械传动系统结构的设计 12
2.1 气动震源机械传动系统结构的总体方案图 13
第三章 各传动部分的设计计算 15
3.1 液压缸的设计计算 18
3.2 气缸的设计计算 21
3.3 直线导杆的选型计算 24
第四章 主要零部件的强度校核 26
4.1 轴承强度的校核计算 27
4.2 气缸的校核计算 28
第五章 设计总结 29
结论 30
致谢 31
参考文献 32
|