{$cfg_webname}
主页 > 机械机电 > 机械 >

风门系统风机控制设备设计(含CAD零件装配图,SolidWorks,STEP三维

来源:wenku7.com  资料编号:WK715001 资料等级:★★★★★ %E8%B5%84%E6%96%99%E7%BC%96%E5%8F%B7%EF%BC%9AWK715001
以下是资料介绍,如需要完整的请充值下载。
1.无需注册登录,支付后按照提示操作即可获取该资料.
2.资料以网页介绍的为准,下载后不会有水印.资料仅供学习参考之用. 帮助
资料介绍

风门系统风机控制设备设计(含CAD零件装配图,SolidWorks,STEP三维图)(论文说明书13700字,外文翻译,CAD图纸9张,SolidWorks三维图,STEP通用三维格式)
前向风机,如9-19、9-26系列风机,由于其输出压力高,因而广泛用于锻冶炉及高压强制通风、物料、空气输送等。前向式风机由于其叶片出口角和叶片曲率较大的结构特点,流动往往比后向风机更为复杂。尤其是在叶轮流道末段,风机总是不可避免的出现强烈的“射流一尾流’’结构、分离流动以及二次流等。这些流动往往是能量损失、振动和噪声的重要来源之一。而在后向风机中,这些不利的流动一般可以得到的减弱甚至消除。因此,设计后向叶片代替前向叶片,减小流动损失,是提高风机的性能的可行路径。
随着国民经济的快速发展,电厂在环境保护方面的压力越来越大,于是电厂在锅炉尾部加装了除尘、脱硫、脱氮等设备;为了提高老电厂的热效率,通常在锅炉尾部加装受热面;有些电厂增加机组后,为了节省投资,从原锅炉分流一部分烟气来预热制粉系统需要的新空气,所有这些都增加了管道的阻力和系统的风量。类似的问题也多存在于煤矿业、建筑通风系统、纺织企业、钢铁企业、水泥生产和粮食储存等社会生产的多个方面。为了满足增大系统风量的需求,必须对风机进行更换或改造。更换新型风机虽然可以满足需要,但是将导致耦合器、增速器、电动机的重新选型、一次性投资巨大,回报率低。对现有风机进行改造,不仅可以降低再投资需要的资金,而且可以减少新设备的占地面积,有利于设备的布置。目前,G4-73型风机还普遍应用于300MW及以下的电厂机组和各类工矿企业中,对其进行研究改造将对这些企业的节能增效产生重大影响。

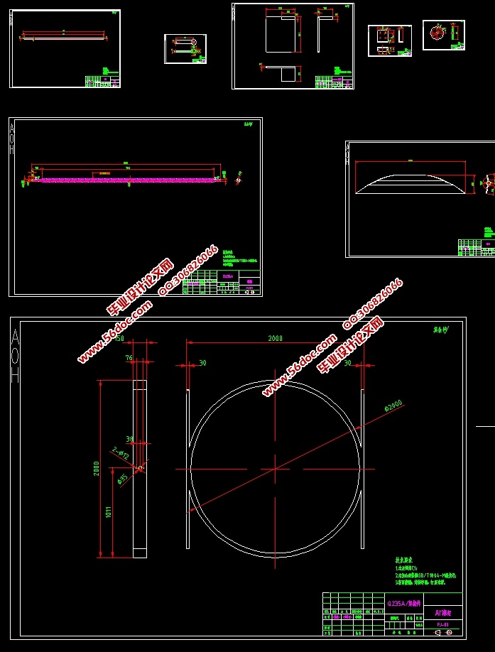
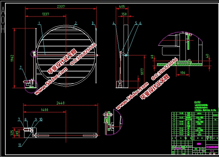
风机系统风门控制设备主要是通过电动执行器配行星齿轮减速机通过偏心轮机构驱动连杆机构带动与百叶窗固接在一起的摇杆上下摆动,这样就实现了百叶窗的开合,因此,就起到了控制风门开合的作用

设计中采用PLC控制系统通过电动执行器控制风门系统风机控制设备实现控制风门开合的动作,既可以简化控制线路,节省成本,又可以提高劳动生产率。
风门系统风机控制设备工作原理
风门系统风机控制设备的工作原理就是通过电动执行器配行星齿轮减速机通过偏心轮机构驱动连杆机构带动与百叶窗固接在一起的摇杆上下摆动,这样就实现了百叶窗的开合,因此,就起到了控制风门开合的作用。由于电动执行器带有信号反馈功能,以及可以任意调节转速和输出扭力,所以这就使得设备在不同的风力场合都能够使用,应用面非常广泛。
 

风门系统风机控制设备设计(含CAD零件装配图,SolidWorks,STEP三维图)
风门系统风机控制设备设计(含CAD零件装配图,SolidWorks,STEP三维图)
风门系统风机控制设备设计(含CAD零件装配图,SolidWorks,STEP三维图)
风门系统风机控制设备设计(含CAD零件装配图,SolidWorks,STEP三维图)
风门系统风机控制设备设计(含CAD零件装配图,SolidWorks,STEP三维图)
风门系统风机控制设备设计(含CAD零件装配图,SolidWorks,STEP三维图)


目录
摘要    1
Abstract    2
第一章绪论    3
  1.1课题的来源与研究的目的与意义..............................................................................4
   1.2风门系统风机控制设备的方案分析.........................................................................5
     1.2.1 结构分析..................................................................................................................6
     1.2.2 机械结构总体方案与布局..........................................................................7
      1.2.3 风门系统风机控制设备的工作原理..........................................................7
   1.3课题研究的内容..................................................................................................8
      1.3.1 Solidworks设计基础...................................................................................9
      1.3.2 草图绘制.....................................................................................................10
      1.3.3 基准特征,参考几何体的创建..................................................................11   
      1.3.4 拉伸、旋转、扫描和放样特征建.............................................................12
      1.3.5 工程图的设计.............................................................................................13
      1.3.6 装配设计.....................................................................................................17
第二章机械结构的设计...........................................    ....................................18
   2.1电动执行器的选型计算    20
   2.2 转轴的设计计算...................................................................................................24
   2.3 曲柄摇杆机构的设计计算...................................................................................25
第三章 风门系统风机控制设备各部分强度的校核.    ...............28
  3.1摇杆强度的校核    28
  3.2转轴的受力分析与校核    29
结论    30
致谢    31
参考文献    32

推荐资料