{$cfg_webname}
主页 > 机械机电 > 机械 >

80T门式起重机设计(含CAD零件装配图)

来源:wenku7.com  资料编号:WK714999 资料等级:★★★★★ %E8%B5%84%E6%96%99%E7%BC%96%E5%8F%B7%EF%BC%9AWK714999
以下是资料介绍,如需要完整的请充值下载。
1.无需注册登录,支付后按照提示操作即可获取该资料.
2.资料以网页介绍的为准,下载后不会有水印.资料仅供学习参考之用. 帮助
资料介绍

80T门式起重机设计(含CAD零件装配图)(论文说明书9700字,CAD图纸7张)
摘 要
随着经济建设的快速发展,中国的基础设施逐渐扩大,道路,机场,港口,水利水电,市政建设等基础设施建设规模也越来越大,门式起重机市场的需求也增加了,本课题是基于对8T门式起重机的设计,通过设计出它的各个组成部件,例如大梁,地梁、竖梁以及小车、主副提升机构来达到本次毕业设计的目的。   
普通门式起重机一般由小车、起升机构、小车运行机构大梁、竖梁、横梁等组成。起升机构包括液压马达、制动器、减速器、卷筒和滑轮组。液压马达通过减速器带动卷筒转动,使钢丝绳绕上卷筒或从卷筒放下,以升降重物。小车架是支托和安装起升机构和小车运行机构等部件的机架,通常为焊接结构。起重机运行机构的驱动方式可分为两大类:一类为集中驱动,即用一台电动机带动长传动轴驱动两边的主动车轮;另一类为分别驱动、即两边的主动车轮各用一台电动机驱动。中、小型门式起重机较多采用制动器、减速器和电动机组合成一体的“三合一”驱动方式,大起重量的普通门式起重机为便于安装和调整,驱动装置常采用万向联轴器。起重机运行机构一般只用四个主动和从动车轮,如果起重量很大,常用增加车轮的办法来降低轮压。当车轮超过四个时,必须采用铰接均衡车架装置,使起重机的载荷均匀地分布在各车轮上。桥架的金属结构由主梁和端梁组成,分为单主梁桥架和双梁桥架两类。单主梁桥架由单根主梁和位于跨度两边的端梁组成,双梁桥架由两根主梁和端梁组成。主梁与端梁刚性连接,端梁两端装有车轮,用以支承桥架在高架上运行。主梁上焊有轨道,供起重小车运行。桥架主梁的结构类型较多比较典型的有箱形结构、四桁架结构和空腹桁架结构。

关键词:门式起重机;起升机构;主梁;结构

结构分析
本次设计的门式起重机主要用于建筑工地上大且重工件的调运,门式起重机主要由:主梁,竖梁,小车,吊钩以及导轨等等零部件组成,其中门式起重机的小车沿着横向安装的轨道作横向往复运动,而安装在主梁上面的小车则沿着横向安装在主梁上面的轨道作横向往复运动,吊钩则实现工件的垂直升降,其工作区域为一矩形
 
机械结构总体方案与布局
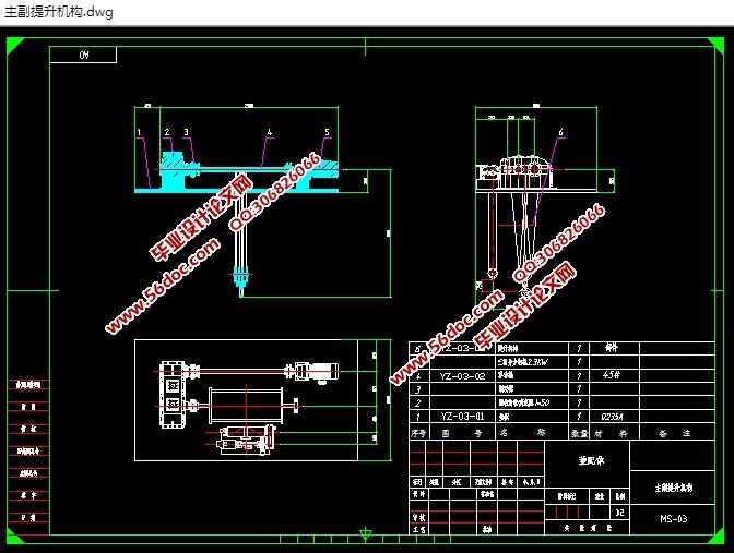
门式起重机主要由:横梁、竖梁、支腿、小车、主副提升机构,滚筒、吊钩以及导轨等等零部件组成,
 

80T门式起重机设计(含CAD零件装配图)
80T门式起重机设计(含CAD零件装配图)
80T门式起重机设计(含CAD零件装配图)
80T门式起重机设计(含CAD零件装配图)
80T门式起重机设计(含CAD零件装配图)


目 录
摘要    I
Abstract    II
第一章绪论    1
  1.1课题的来源与研究的目的与意义    2
  1.2门式起重机的方案分析    3
    1.2.1 结构分析    4
    1.2.2 机械结构总体方案与布局    5
  1.3液压系统简介    6
  1.4液压系统的基本组成    8
  1.5液压传动优缺点    9
第二章机械结构的设计............10
  2.1 起升机构的设计    11
    2.1.1 圆柱齿轮减速器的选型计算    13   
    2.1.2 卷筒选型计算    13
    2.1.3 浮动轴的设计计算    14
    2.1.4 联轴器的选型计算    15
    2.1.5 钢丝绳的选型计算    15
    2.1.6 制动器的选型计算    16
  2.2 行走小车的机构的设计    16
    2.2.1小车行走电机的选型计算    17
    2.2.2传动齿轮的设计计算    18
  2.3 锁紧机构的选型计算    18
第三章 液压系统的设计    19
   3.1 制定液压回路方案    20
     3.1.1油源形式及压力控制    20
     3.1.2调速回路    21
   3.2 拟定液压系统图    21
     3.2.1选择液压基本回路    22
     3.2.2 选择液压元件    23
第四章 各部分强度的校核.............24
   4.1浮动轴强度的校核    24
   4.2齿轮强度的校核    25
结论    26
致谢    27
参考文献    28

 

推荐资料