玉米剥皮机的设计(含CAD零件装配图,SolidWorks三维图)(论文说明书8200字,CAD图纸9张,SolidWorks三维图,答辩PPT)
The Design of the Corn Peeling Machine
摘 要
玉米剥皮机作为农业机械的一种,在当今社会得到越来越普遍的应用,此次设计的这种玉米剥皮机的出现不仅能够大大提高生产效率,也可以实现农业的自动化大生产,并且玉米剥皮机更接近我们的生活实际,相信本次玉米剥皮机的设计和研发,能够大大推动机械工业的发展进程,能够为现代化大生产的农业生产带来新的变革和创新。然而机械设备又是机械工业的重要组成部分,不论是传统的剥皮设备,还是现代剥皮设备,玉米剥皮机都是十分重要的。
与以往的剥皮设备相比,以往的实现玉米剥皮的方法都是依靠人工的方式,这样工作效率低下,质量得不到保证,而本课题所设计的玉米剥皮机,能够实现玉米的自动剥皮,在人工剥皮的基础上面大大地提高了生产效率,降低了劳动成本,为以后玉米剥皮机的发展和创新提供了较好的参考作用,具有现实意义。
关键词:农业 机械 生产 设备 意义
ABSTRACT
Thsi paper is for a lot of special places, like the risk is very big, or we are difficult to reach, such as disarm bombs, unknown corresponding domains such as detection, probing deep of more dangerous situation usually need to implement the robot.It’s a main part of robot for micro pedipulator, walking robots and more than six feet, compared to the Eight Legged Robot, because of strong bearing capacity, good stability, which the meritss is simple construction, So, it is very important for desian the internotion machine.This paper mainly to the four bar mechanism as the main execution elements to design of micro walking the whole scheme of the four bar mechanism. Its principle is diagonal synchronization.
it detailed performance curve characteristics of the connecting rod,when the curve trajectory diagonal straight line segment, the robot is stationary, the motion trajectory when the diagonal curve is slanting line do the walking motion, robot. The miniature walking robot is mainly driven by servo motor, so as to drive the leg action driven synchronous belt wheel by a crank and rocker mechanism.
Key words: corn thresher reame processing meaningful






目 录
1引言……………………………………………………………………………………1
1.1 课题的来源与研究的目的和意义…………………………………………1
1.2 国内外玉米剥皮机的发展概况………………………………………………2
1.3 研究内容…………………………………………………………………………2
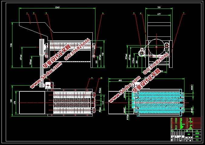
2玉米剥皮机总体结构的设计………………………………………………………3
2.1 玉米剥皮机的方案原理图的确定…………………………………………3
2.2 机械传动部分的设计计算……………………………………………………4
2.2.1 电机的选型计算…………………………………………………………5
2.2.2 齿轮传动的设计计算……………………………………………………5
2.2.3 带传动的设计计算……………………………………………………6
2.2.4 剥皮辊的确定…………………………………………………………8
2.2.5 剥皮辊生产能力的设计计算…………………………………………9
2.2.6 平键的选型计算………………………………………………………10
3各主要零部件强度的校核…………………………………………………………11
3.1齿轮强度的校核与计算……………………………………………………13
3.2轴承强度的校核计算…………………………………………………………15
4 三维软件设计总结……………………………………………………………16
结论………………………………………………………………………………17
致谢……………………………………………………………………………………18
参考文献………………………………………………………………………………19
|