向日葵脱粒机设计(含CAD图,SolidWorks,STEP三维图)(论文说明书18000字,CAD图纸10张,SolidWorks三维图,STEP通用三维格式)
摘 要
本课题来源于当今社会机械工业农用机械设备的创新和更新换代基础之上,通过设计出向日葵脱粒机,从而来满足当今社会向日葵脱粒效果设备脱粒效果不足以及维修困难、成本高等缺陷。
国内向日葵脱粒机的研发及制造要与全球号召的高效经济、脱粒质量好,效率高等主题保持一致。近期对机械行业中向日葵脱粒机的使用情况进行了调查,发现在机械行业中,脱粒机作为农业机械的一种,使用的非常普遍。自然而然在机械设备中它们的安装也非常频繁。传动的向日葵脱粒机在没有自动脱粒设备而需要人工脱粒的情况下,脱粒效率低下,劳动强度大,所以设计一个专用的向日葵脱粒机势在必行。
本文运用大学所学的知识,提出了向日葵脱粒机的结构组成、工作原理以及主要零部件的设计中所必须的理论计算和相关强度校验,构建了向日葵脱粒机总的指导思想,从而得出了该向日葵脱粒机的优点是高效,经济,并且生产质量高,运行平稳的结论。
关键字:向日葵脱粒机,脱粒,设备,高效
Abstract
With development of all kind of science technology and global economy, Pneumatic manipulator is a automated devices that can mimic the human hand and arm movements to do something,aslo can according to a fixed procedure to moving objects or control tools. It can replace the heavy labor in order to achieve the production mechanization and automation, and can work in dangerous working environments to protect the personal safety.
Therefore widely used in machine building, metallurgy, electronics, light industry and atomic energy sectors.The pneumatic part of the design is primarily to choose the right valves and design a reasonable pneumatic control loop, by controlling and regulating pressure, flow atcompressedneceengththdirectionprocedurework.
The inverted pendulum is a typical high order system, with multi variable, non-linear, strong-coupling, fleet and absolutely instable. It is representative as an ideal model to prove new control theory and techniques. During the control process, pendulum can effectively reflect many key problems such as equanimity, robust, follow-up and track, therefore.This paper studies a control method of double inverted pendulum . First of all, the mathematical model of the double inverted pendulum is established, then make a control design to double inverted pendulum on the mathematical model, and determine the system performance index weightmatrix , by using genetic algorithm in order to attain the system state feedback control matrix. Finally, the simulation of the system is made by .
Key word: pneumatic manipulator cylinder pneumatic loop Fout degrees of freedom.
2.2 向日葵脱粒机的工作原理
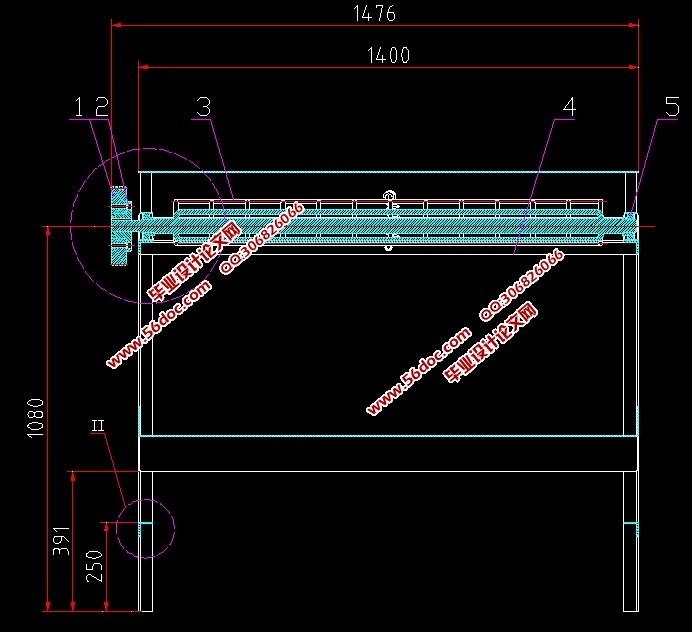
向日葵脱粒机在工作时,利用转轴体回转运动与底筛之间的间隙相配合,使向日葵粒拖下(转轴体上的齿条和底筛之间的揉搓作用,将向日葵籽脱离向日葵盘,由于重力的作用,向日葵粒会自动落入到下面的出料斗里面,如此循环脱粒。
2.3 机械传动部分的设计计算
2.3.1电机的选型计算
已知整个设备上向日葵与零件的重量,我们取总重量为150Kg,向日葵脱粒机转动速度为1~2r/min。





目 录
摘要 I
Abstract II
1 引言 1
1.1 课题的来源与研究的目的和意义 1
1.2 向日葵脱粒机的发展现状 2
1.3 本课题研究的内容 3
1.3.1 草图绘制 5
1.3.2 基准特征,参考几何体的创建 6
1.3.3 拉伸、旋转、扫描和放样特征建 7
1.3.4 工程图的设计 10
1.3.5 装配设计 11
2 向日葵脱粒机总体结构的设计 12
2.1 向日葵脱粒机的总体方案图 12
2.2 向日葵脱粒机的工作原理 15
2.3 机械传动部分的设计计算 17
2.3.1电机的选型计算 18
2.3.2 V带传动的设计计算 19
2.3.3轴承座的选型计算 20
2.3.4键的选型计算 20
2.3.5传动轴的设计 20
3 各主要零部件强度的校核 21
3.1机架的设计及强度校核 23
3.2 传动轴的设计及强度校核 23
3.3 轴承的强度校核 26
4 向日葵脱粒机中主要零件的三维建模 29
4.1V带轮的三维建模 30
4.2摆动筛的三维建模 31
4.3护罩的三维建模 32
4.4向日葵脱粒机的三维建模 34
5 三维软件设计总结 35
结论 36
致谢 37
参考文献 38
|