{$cfg_webname}
主页 > 机械机电 > 工艺夹具 >

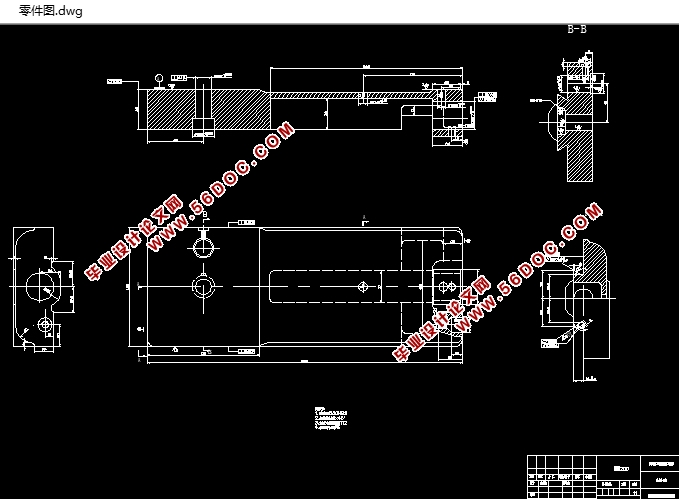
车床小刀架机械加工工艺及镗孔的夹具设计(含CAD零件图装配图)

来源:wenku7.com  资料编号:WK718937 资料等级:★★★★★ %E8%B5%84%E6%96%99%E7%BC%96%E5%8F%B7%EF%BC%9AWK718937
以下是资料介绍,如需要完整的请充值下载。
1.无需注册登录,支付后按照提示操作即可获取该资料.
2.资料以网页介绍的为准,下载后不会有水印.资料仅供学习参考之用. 帮助
资料介绍

车床小刀架机械加工工艺及镗孔的夹具设计(含CAD零件图装配图)(论文说明书12000字,CAD图纸7张,工艺卡,工序卡)
摘要
车床小刀架是车床中的一个重要部件,有了它车床才能够对零件进行切削。
本次设计为车床小刀架加工工艺上的一个镗孔夹具(32H7)。在设计夹具时,主要以燕尾槽进行定位。利用螺栓与螺母进行夹紧操作。在设计该夹具时,根据零件的形状与尺寸来进行对夹具的结构设计。最后通过校核计算,来校核该夹具的强度是否满足要求。
该夹具的结构及操作简单,能大大提高劳动生产率。
关键词:车床小刀架,机械加工工艺,夹具。

2.1零件的作用
题目所给定的车床小刀架是车床的组成部件,它位于中拖板之上,主要作用是安装方刀架,并带动刀架作手动进给运动,转动小刀架还可以用来车削圆锥,倒角等,所以小刀架对于实现车床的功能,保证工件加工质量都是非常重要的。
2.2 零件的工艺分析
 为引导小刀架在中刀架上移动,此零件有一对燕尾导轨,它们之间有一定的位置要
求。
燕尾导轨主要用来导向,所以其加工精度较高,由于是狭小的平面,故应采用刮削来保其精度。燕尾导轨定位属于组合表面定位,由于此零件生产批量较大,所以,设计一专用夹具来对其进行加工,以保证加工质量,提高生产率。

根据以上分析,并结合零件形状结构等具体情况,制定如下工作过程:
工序1.划线  划四周及导轨面的铣、刨线。在划线平台上加工。留加工余量。
工序2.铣  粗精铣上面及搭子,A面留刮削余量。翻面装夹,粗、精铣导轨顶面
           粗、精铣四周各面,尺寸138留余量
工序3.铣  校平直,对线铣燕尾导轨各面、倒角,刮削面均留余量
工序4.钳  按图纸上要求,研刮燕尾导轨各面;以燕尾导轨支承面为基面,刮A平面
工序5.磨  以燕尾导轨面校平垂直,磨138两侧面,保证对称
工序6.镗      以燕尾导轨面定位,镗32H7(用镗孔夹具)
工序7.钻  以燕尾导轨面定位,钻、扩、铰18H7孔,扩26H8台阶孔;钻、扩、铰20H7孔,扩23台阶孔
工序8.划线  划2-M8、1-M6、2-10H8等孔的孔位线
工序9.钻  钻、铰2-10H8孔;对线钻M8底孔1个,再钻M8底孔,锪1713孔;.对线钻M6底孔,锪114。
工序10.钳   攻2-M8、1-M6等螺孔的螺纹;清除毛剌、锐角倒钝
工序11.检   成品检验
         入库
 

车床小刀架机械加工工艺及镗孔的夹具设计(含CAD零件图装配图)
车床小刀架机械加工工艺及镗孔的夹具设计(含CAD零件图装配图)
车床小刀架机械加工工艺及镗孔的夹具设计(含CAD零件图装配图)
车床小刀架机械加工工艺及镗孔的夹具设计(含CAD零件图装配图)


目    录
摘  要    I
ABSTRACT    II
第1章 绪论    1
1.1 定位装置    1
1.2 夹紧装置    1
1.3 对刀-引导装置    1
1.4 其他元件及装置    1
1.5 夹紧体    1
第2章 零件的分析    2
2.1 零件的作用    2
2.2 零件的工艺分析    2
第3章 零件的规程设计    3
3.1 确定毛坯的制造形式    3
3.2 基面的选择    3
3.3 基准的选择    3
3.3.1.粗基准的选择    3
3.3.2精基准的选择    3
3.4制订工艺路线    3
第4章 车床小刀架工艺过程    4
第5章 机械加工余量、工序尺寸及毛坯尺寸的确定    5
第6章 确定切削和用量及基本工时    6
6.1 工序1划线    6
6.2 工序2铣    6
6.3 工序3铣    11
6.4 工序4钳    12
6.5 工序5磨    12
6.6 工序6镗    13
6.7 工序7钻    15
6.8 工序8划线    20
6.9 工序9钻    20
6.10 工序10钳    25
6.11 工序11检    25
第7章 夹具设计    26
7.1 镗模导向装置的设计    26
7.2 夹具设计    27
7.3 夹紧元件强度校核    28
7.4 标准件的选用    29
7.5 夹具设计及操作简要说明    29
结论    30
致谢    31
参考文献    32

推荐资料