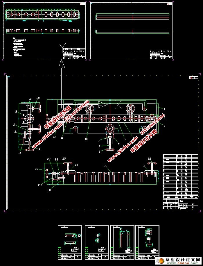
线夹加工工艺规程与夹具设计(含CAD零件装配图)
来源:wenku7.com 资料编号:WK713200 资料等级:★★★★★ %E8%B5%84%E6%96%99%E7%BC%96%E5%8F%B7%EF%BC%9AWK713200
以下是资料介绍,如需要完整的请充值下载。
1.无需注册登录,支付后按照提示操作即可获取该资料.
2.资料以网页介绍的为准,下载后不会有水印.资料仅供学习参考之用. 密 保 惠 帮助
资料介绍
线夹加工工艺规程与夹具设计(含CAD零件装配图)(论文说明书8600字,CAD图纸7张)
线夹的加工工艺分析
线夹因为其零件尺寸较大,结构形状也比较单一,但侧孔和底面孔的精度要求较高,此外还有顶面的28孔要求加工并倒角,但是对精度要求不是很高。线夹的底面孔和侧孔的粗糙度要求都是 ,所以都要求精加工。其各个端面之间都存在垂直度等公差要求等。因为其尺寸精度、几何形状精度和相互位置精度,以及各表面的表面质量均影响机器或部件的装配质量,进而影响其性能与工作寿命,因此它的加工是非常关键和重要的。
线夹材料:酚醛布层压板;毛坯:638x40x25mm 设备: 立式加工中心SYIL V600系列X轴: 650mm Y轴: 380mm Z轴: 460mm,大批量加工

|